山水文園
更新時間:2017-02-06
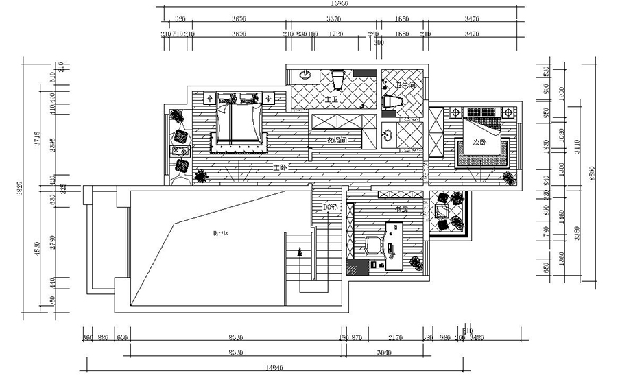
| 設計風格 | 新古典 | 戶型案例 | 復式 | 案例面積 | 280 |
|---|---|---|---|---|---|
| 樓盤名稱 | 山水文園 | 所在城市 | 北京 | 案例造價 | 26萬 |
| 設計師 | |||||

案例說明:
此方案把關愛使用者的生活和審美放在第一位,其次是創造出專屬于業主個性生活的空間。本套方案通過硬裝與軟裝的配合將東方的傳統靜謐與西方的開放簡潔在空間中相互的影響與滲透,完美的結合。業主具有獨特的審美,對中國文化尤其熱愛,喜歡收藏古玩字畫。并且具備很高的品位與更為實際的想法。真正的奢華不是僅僅停留在第一眼的印象中,應該是在你多次看到它的時候都能發現不同的驚喜。不是所有的高貴都是全部用昂貴的材料堆砌而成,而可以通過更藝術化的材料運用與高品質的產品來搭配演繹。同風格案例:更多>>
同面積案例:
















京公網安備 11010802032436號